Алёна Бронникова


Для застройки домами территории хлебозавода № 1 в Перми снесут 10 зданий

Проект одобрен госэкспертизой и не получил предложений в ходе общественного обсуждения

Поделиться
хлебозавод долган

  Константин Долгановский

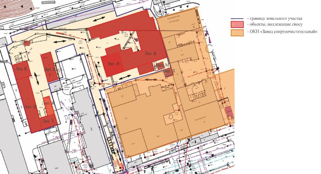
На территории комплекса бывшего хлебозавода № 1 по ул. Окулова, 73а планируется снести 10 отдельно стоящих зданий для будущей застройки. Это следует из опубликованного на сайте инспекции по охране объектов культурного наследия (ОКН) Пермского края акта государственной историко-культурной экспертизы.

Документом выдано положительное заключение на проект, разработанный пермским ООО «Гильдия археологов». Проектом предусмотрено обеспечение сохранности ОКН «Завод спиртоочистительный» при демонтаже расположенных вблизи него неэксплуатируемых объектов капстроительства для очистки площадки под будущее строительство.

Среди объектов — нежилые здания, построенные с 1936 по 1998 год, площадью от 7,7 до 1694,4 кв. м. В их числе двухэтажный гараж, шестиэтажный склад, одноэтажные здания столярного цеха, складов и пр. общей площадью 3,7 тыс. кв. м.

«Демонтируемые здания под литерами Б, В, М, Л расположены близко к ОКН «Завод спиртоочистительный», здание под лит. Л находится непосредственно на территории ОКН, при этом не относится к ОКН. Так как расстояние от демонтируемого здания до здания ОКН больше, чем его высота, негативного влияния на ОКН оказываться не будет», — отмечается в акте.

Окулова. 73

План земельного участка / Государственная инспекция по охране объектов культурного наследия Пермского края

Для сохранения ОКН проектом принимается комбинированный метод сноса объектов с применением автокрана, сменного рабочего навесного оборудования на экскаваторе менее 10 т ручного инструмента. Демонтаж ведётся механизированным способом без использования взрывных методов. Разборы производятся сверху вниз.

Согласно опубликованному на сайте документу, в ходе общественных обсуждений предложения не поступили.

Напомним, в конце 2023 года администрация Перми продала на аукционе комплекс зданий бывшего хлебозавода № 1 — на продажу была выставлена часть нефункционирующего предприятия с участком площадью 7 тыс. кв. м. «Пермглавснаб» получил землю за 192,5 млн руб. К застройке планируется приступить в 2025 году.

Главное здание хлебозавода, являющееся ОКН, должно быть сохранено и приведено в порядок. Объект на муниципальных торгах приобрёл предприниматель Всеволод Юшков, который планирует его реконструировать в творческий кластер.

Подпишитесь на наш Telegram-канал и будьте в курсе главных новостей.

Поделиться