Алёна Бронникова


Строительство общественного центра на Водниках в Перми оценили в 23,9 млн рублей

Завершить работы планируется до конца 2024 года

Поделиться
строительство

  Дмитрий Енцов

ГКУ Пермского края «Центр организации закупок» объявило открытый конкурс на выполнение работ по строительству нежилого здания под размещение общественного центра в микрорайоне Водники в Перми. Согласно информации на сайте госзакупок, он будет расположен на ул. Батумской, между улицами Оханской и Черниговской.

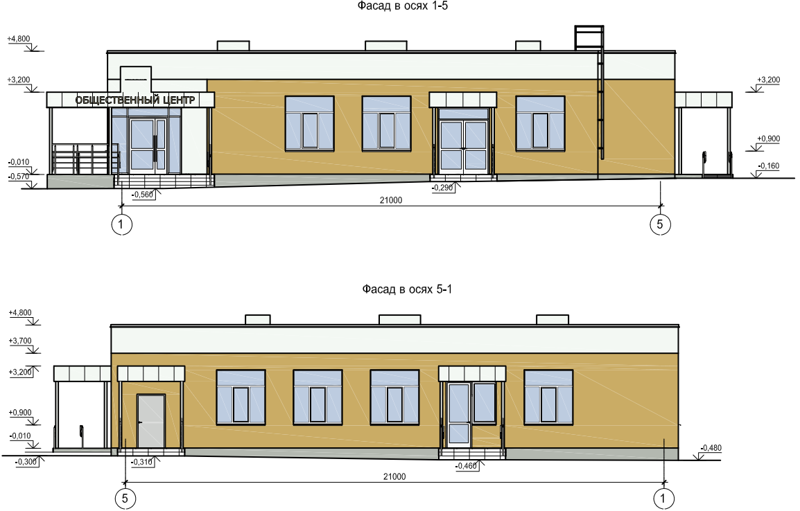
Как указано в документации к конкурсу, общая площадь земельного участка — 4,5 тыс. кв. м, площадь одноэтажного здания составит 259,7 кв. м. Расчётный срок службы объекта — не менее 50 лет. В нём планируется разместить актовый зал со сценой, рассчитанный на 48 человек, конференц-зал, комнату для организации кружковой деятельности, гардероб, санузлы и кабинеты для деятельности ТОС, некоммерческих организаций и для приёма граждан участковым. Вместимость центра — 49 человек.

Общественный центр эскиз

Эскиз общественного центра/ документация к открытому конкурсу в электронной форме

Сроки выполнения работ — с 1 апреля по 30 ноября 2024 года. Начальная (максимальная) цена — 23,9 млн руб. Контракт будет заключён с МКУ «Управление технического заказчика» администрации Перми. Финансирование предусмотрено муниципальным бюджетом.

Заявки на участие в закупке принимаются до 18 марта. Дата подведения итогов — 21 марта.

На прошлой неделе стало известно, что СК «Константа» победила в двух открытых конкурсах, объявленных ГКУПК «Центр организации закупок» на строительство общественных центров в Перми. Новые объекты появятся по ул. Борцов Революции, 153а и на Бродовском кольце. Стоимость каждого контракта составляет 25,7 млн руб. Исполнитель должен построить два общественных центра до конца 2024 года. Начало выполнения работ — 1 мая.

Сейчас в Перми работает 48 общественных центров. Помещения в них власти предоставляют НКО (ТОСам, организациям патриотической направленности, молодёжи, советам ветеранов и пр.) на безвозмездной основе. В ближайшие три года власти собираются построить в разных районах Перми пять аналогичных центров.

Подпишитесь на наш Telegram-канал и будьте в курсе главных новостей.

Поделиться