Юля Баталина

Юлия Баталина

редактор отдела культуры ИД «Компаньон»

Точка входа в речную долину

В 2025 году в Перми откроется четыре экологических визит-центра в «Зелёном кольце»

Поделиться
Зелёное кольцо. Визит-центр

Фото: "ГорЗеленСрой"

В офисе муниципального предприятия «Городское зелёное строительство» 18 декабря прошла презентация визит-центров, которые создаются в рамках проекта «Зелёное кольцо». Событие вызвало повышенный интерес экологической общественности.

Как пояснила директор «ГорЗеленСтроя» Екатерина Овчинникова, в настоящее время в проект «Зелёное кольцо» входят особо охраняемые природные территории (ООПТ) «Черняевский лес», «Егошихинская долина» и «Долина реки Данилихи». «ГорЗеленСтрой» занимается благоустройством и развитием Егошихи и Данилихи. В качестве «каркаса» «Зелёного кольца» рассматриваются долины пяти рек: Егошихи, Данилихи, Ивы, Мулянки и Мотовилихи — с притоками. Вся территория делится на природные парки, некоторые уже получили названия, для других имена пока ищут. Общая площадь сегодняшнего проектирования — 425 га, однако она имеет тенденцию к увеличению.

Екатерина Овчинникова, директор МУК «Городское зелёное строительство»:

— Открытие визит-центров на любой особо охраняемой природной территории — это всегда событие российского масштаба. Особенно это большая редкость для ООПТ на территории города. Аналогов в России мало.

В рамках проекта утверждено создание четырёх визит-центров, которые должны быть построены в 2025 году — два на Данилихе и два на Егошихе. Данилихинские визит-центры планируются в сквере Каменских — там, где речку пересекает ул. Плеханова, — и в Серебрянском парке на подходах к Крохалевке. Егошихинские визит-центры будут расположены у Северной дамбы — в природном парке, который называется «Разгуляй», и около Средней дамбы, в парке «Городские горки».

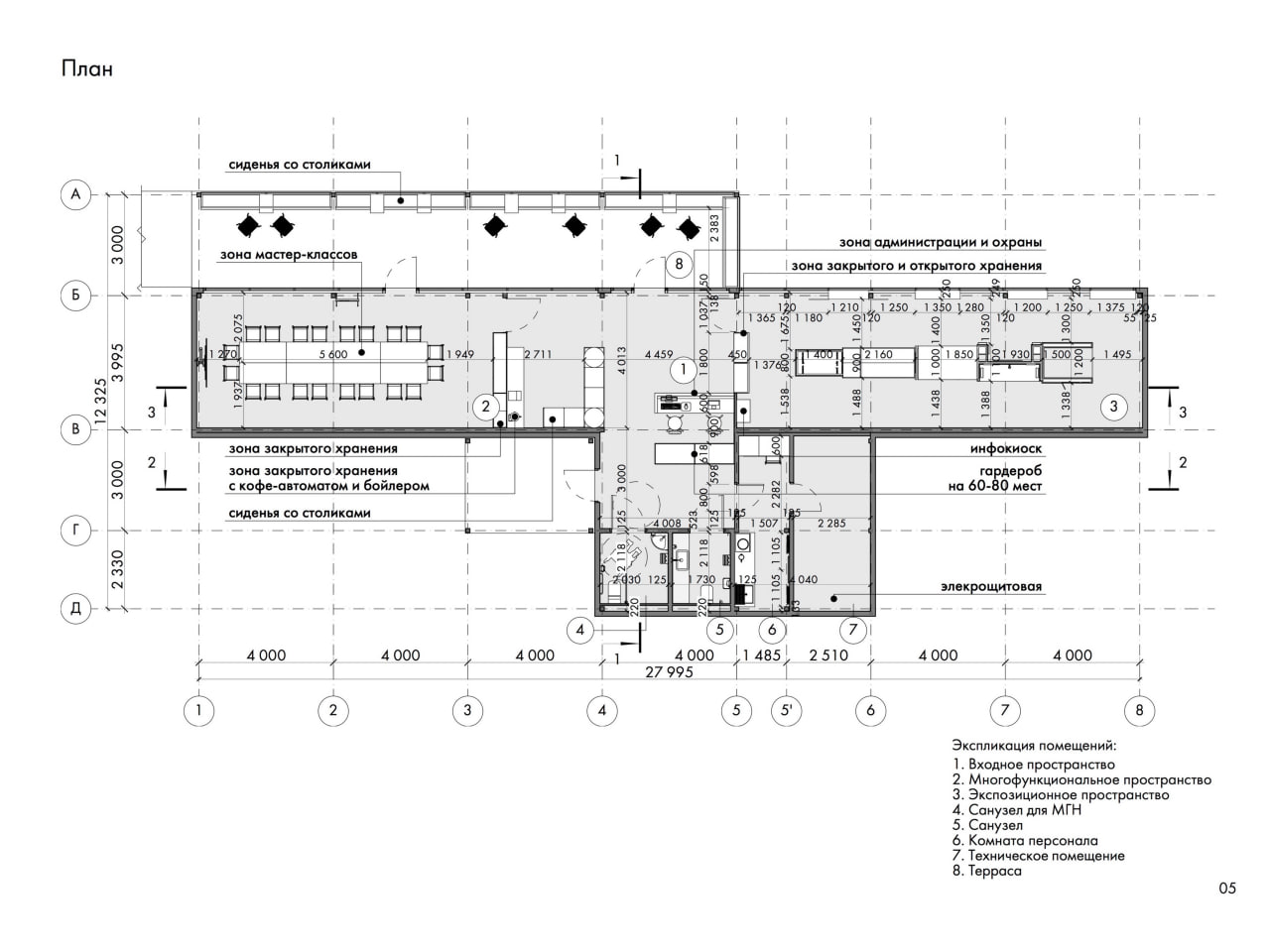
Модуль визит-центра

Схема модуля визит-центра. Презентация Пермского краеведческого музея

Все визит-центры расположатся в одинаковых модулях, состоящих из четырёх зон: входной зоны с рецепцией, кофе-пойнтом, туалетными комнатами и пунктом охраны; зала постоянных экспозиций, многофункционального пространства и террасы с видом на речную долину. Терраса будет под крышей, на ней можно будет укрыться от дождя или солнца, летом предполагается установка на ней столиков и сидений. Общая площадь модуля — 143 кв. м, площадь террасы — 46 кв. м.

Концепции визит-центров на Данилихе сейчас обсуждаются, но визит-центры на Егошихе уже спроектированы, и 18 декабря разработчики представили их эскизы.

Визит-центр в Разгуляе проектировала большая команда Пермского краеведческого музея, доклад делала заместитель директора музея по развитию Юлия Глазырина.

Юлия Глазырина, заместитель директора Пермского краеведческого музея по развитию:

— Одним из ключевых моментов было то, что это исторически значимое для города место, и поэтому кроме эколого-просветительского компонента важно было на основе музейных коллекций представить многослойный локус места, который позволяет говорить не только об экологии именно в этом — первом — визит-центре.

Мы понимали, что невозможно включить весь пласт информации в экспозиционную часть визит-центра, поэтому в этот небольшой зал мы заложили решения, которые позволяют при модульном гибком оборудовании периодически менять содержание. Мы не могли использовать фондовые коллекции и решили вообще не использовать таксидермические материалы или что-то, что могло бы напоминать стандартный музей. Мы предлагаем много интерактивных моментов, которые дают точки отсчёта, и дальше, уже выходя за пределы визит-центра, можно то или иное явление, на которое мы обращаем внимание тезисно, исследовать уже в долине реки.

Дизайнерское решение пространства разрабатывали архитектор Никита Гойнов и графический дизайнер Мария Артамонова.

Во входной зоне предполагается разместить информационную стойку, стойку для сувениров, небольшое кафе, комнату для сотрудников и туалетные комнаты.

Архитектура многофункционального пространства разрабатывалась с учётом того, чтобы разместить автобус школьников или туристов — группу в 45-50 человек, поэтому предусмотрена система трансформируемых столов с разными вариантами расстановки.

Терраса визит-центра выходит на речную долину в сторону Камы. Здесь Никита Гойнов предложил организовать посадочные места в виде длинной скамейки вдоль перил.

Схема экспозиции визит-центра

Экспозиция визит-центра "Разгуляй". Презентация Пермского краеведческого музея

В основной экспозиции не будет, как это обычно принято в музеях, экспонатов вдоль стен, наоборот: архитектор спроектировал центральную конструкцию, которую можно будет обходить по периметру. По словам Юлии Глазыриной, экспозиция будет отсылать к панорамному остеклению, которое предусмотрено для наблюдений за долиной: в экспозиции будут содержаться подсказки, что именно можно исследовать в долине.

В основной экспозиции будет пять ключевых тем, каждая из которых представлена в отдельном экспозиционном модуле: «Малые реки наполнены жизнью», «Открытие Мёрчисона вписало Пермь в историю», «Первогород древнее, чем кажется»… Четвёртый модуль — «Слои времени» — связан с ценностью долины не только как субъекта геологического или экологического осмысления, но и как места исторического контекста, важного не только в древности, но и в новейшей истории Перми; здесь музейщики обращаются к опыту коллег из Музея современного искусства PERMM и его проекта «Общий маршрут», связанного с долиной Егошихи.

Юлия Глазырина:

— Подняв фондовые, архивные фотографии, мы обнаружили, что 150 или 120 лет назад здесь устраивали пикники с самоварами и фарфором; здесь прокладывали лыжные маршруты; в марте 1917 года из Мотовилихи по долине Егошихи шла многотысячная демонстрация в центр города. В середине ХХ века люди использовали эти долины для садоводства, русло реки даже было спрямлено для того, чтобы дачникам было удобнее туда ходить. Такого рода артефакты мы считаем не менее интересными и ценными.

На склонах долины есть несколько видовых точек, с которых открываются панорамы, притягательные для фотографов разных лет, и команда музея собрала из исторических фотографий «таймлапсы», которые позволяют увидеть поэтапно, как, например, строилась Северная дамба, как прошёл первый автобусный маршрут, как менялся вид от Городских Горок на северо-восток. В целом модуль «Слои времени» через документальные материалы, фотографии и карты говорит о том, как город, начинаясь здесь, прирастал.

Центральный модуль «Первогород древнее, чем кажется» будет показывать материалы раскопок, эта часть экспозиции комплектовалась в Камской археологической экспедиции и будет включать находки разных периодов — от первобытной Егошихинской стоянки до Егошихинского медеплавильного завода.

Экспозиция визит-центра

Экспозиция визит-центра "Разгуляй". Презентация Пермского краеведческого музея

Разновысотные модули экспозиции будут наполнены всевозможной «интерактивностью»: здесь и карта Перми в виде пазла, который можно складывать, ориентируясь на «водный каркас» города; и ниша, в которую смогут залезать дети, чтобы увидеть здешнюю землю в разрезе и понять, сколько геологических периодов предшествовали пермскому; и ящички с фотографиями, которые можно самостоятельно выдвигать.

Последний, пятый модуль посвящён мотивации самостоятельного исследования речной долины. Здесь будет несколько игровых элементов, рассказывающих, что такое пищевые цепочки, как устроены сложные экологические взаимосвязи, какие типичные и уникальные биологические виды можно встретить в этой долине.

Юлия Глазырина:

— Это история, которая позволяет человеку, вооружившись разными знаниями, выйти в эту долину на маршрут или, наоборот, вернувшись с этого участка в визит-центр, здесь резюмировать то, что он увидел.

Завершает маршрут по экспозиции фотозона в виде «будки времени».

Зелёное кольцо. Экотропа ночью

Фото: "ГорЗеленСтрой"

В докладе второго разработчика — Ассоциации экологов Пермского края, которую представляла доцент кафедры биогеоценологии и охраны природы географического факультета ПГНИУ Светлана Кулакова, акцент был сделан на организацию экотропы, ведущей к визит-центру «Городские горки» у Средней дамбы.

По словам докладчика, если визит-центр «Разгуляй», о котором говорила Юлия Глазырина, ориентирован в первую очередь на туристов — как организованных, так и стихийных, то визит-центр «Городские горки» — профориентационный и «заточен» под работу со школьниками. В ходе экскурсий и самостоятельных исследований ребята должны получить представление об экологических профессиях, которые можно получить в регионе в настоящее время, и об экологических профессиях будущего. Ключевые профессии условно объединены в группы: промышленный эколог, биоэколог, специалист в сфере экологического туризма, ландшафтный дизайнер, эколог-просветитель. Экологическая тропа, на которой расположится несколько исследовательских площадок, станет частью этой работы.

Зелёное кольцо. Экотропа

Фото: "ГорЗеленСтрой"

Протяжённость тропы — около километра. Она начнётся со створа улицы Макаренко, спустится в долину и уйдёт под путепровод на Средней дамбе, около которой и расположится визит-центр. На тропе будут установлены четыре информационных стенда: приветственный, «Правила подкормки птиц», «Насекомые и луг» и «Пойма реки». Планируется оборудовать восемь исследовательских площадок: три площадки с кормушками для наблюдения за птицами, точку фенологических наблюдений, два гидропоста для наблюдения за рекой и два метеопоста для погодных наблюдений.

В самом визит-центре планируется размещение постоянной экспозиции, рассказывающей о растениях, беспозвоночных и позвоночных животных; показывающей геологический срез долины; в числе прочего в экспозиции планируется разместить стенд с набором почвенных монолитов, фотографии птиц с кнопкой, при нажатии на которую слышно голос птицы, разные виды искусственных гнездовий с правилами изготовления и эксплуатации, фигурки птенцов и птиц из папье-маше, фотографии, большой настенный рисунок, на котором нужно отыскать всех птиц (или раскраску), пазлы с птицами и инструментами орнитологов, серии видеороликов: об экологических профессиях, об эколого-орнитологических исследованиях; о жизни птиц.

Светлана Кулакова, доцент кафедры биогеоценологии и охраны природы географического факультета ПГНИУ, председатель Ассоциация экологов Пермского края:

— В музейной экспозиции мы предлагаем осветить информацию о биологическом разнообразии, сделать акцент на том, как формировалась долина, каким образом она стала такой, как сейчас выглядит. Мы хотим сделать отдельный акцент на зимней подкормке птиц, поскольку до сих пор не все знают, что подкармливать правильнее в зимний период времени. Хотим подробно рассказать, чем подкармливать, как организовать регулярную подкормку. Много печальных опытов: когда хорошая погода, людей много, подкармливают хорошо, а когда плохая погода, никто не ходит, не подкармливает, а животные уже ждут.

В многофункциональном пространстве визит-центра учёные предлагают оборудовать лабораторию для учебных исследований. На базе визит-центра планируется проводить просветительские мероприятия разных форматов: экскурсии, мастер-классы, экологические и деловые игры, научно-популярные лекции.

Светлана Кулакова предложила сделать символом экотропы и визит-центра «Городские горки» произрастающий здесь в диких условиях краснокнижный жёлтый ирис.

Презентации вызвали множество вопросов от общественников. Экологически обеспокоенных граждан волнует всё: от экономической модели функционирования визит-центров до принципов освещения экотроп.

Сейчас начинается обсуждение концепций следующих двух визит-центров: в сквере Каменских и в Серебрянском парке. Их разработчики будут определены в начале следующего года.

Зелёное кольцо. Речная долина. Экотропа

Фото: "ГорЗеленСтрой"

Подпишитесь на наш Telegram-канал и будьте в курсе главных новостей.

Поделиться